Пресс для бочек: удобный и доступный способ изготовления на своей даче

Если вы хотите удобный способ изготовления пресса для бочек, не обязательно покупать готовое устройство. Мы предлагаем подробную инструкцию и полезные советы по созданию пресса своими руками. Сделайте его на своей даче и наслаждайтесь удобством и экономией времени в вашей работе с бочками.


Выберите подходящий материал для изготовления пресса, такой как прочная древесина или металлическая труба.

Изготовление ручной мини-тюковалки для сена из бочки своими руками. Воплощение 3Д наброска в жизнь.

Правильно выберите размеры пресса, учитывая размеры вашей бочки и необходимость маневрирования с ней.

👍 ЛУЧШИЙ ПРЕСС для новой мастерской своими руками 👍 + Испытаем магнитный сверлильный станок!

Обязательно учтите возможность регулировки давления пресса для достижения оптимального результата.

Пресс для бочек (бочкодав) BP-24

Не забудьте предусмотреть удобное механическое или гидравлическое устройство для нажатия на бочку.

Пресс для бочек

Установите пресс на стабильной поверхности, чтобы избежать его покачивания во время работы.

Пресс для бочек

Перед началом использования пресса, проверьте его надежность и исправность, особенно механические узлы.

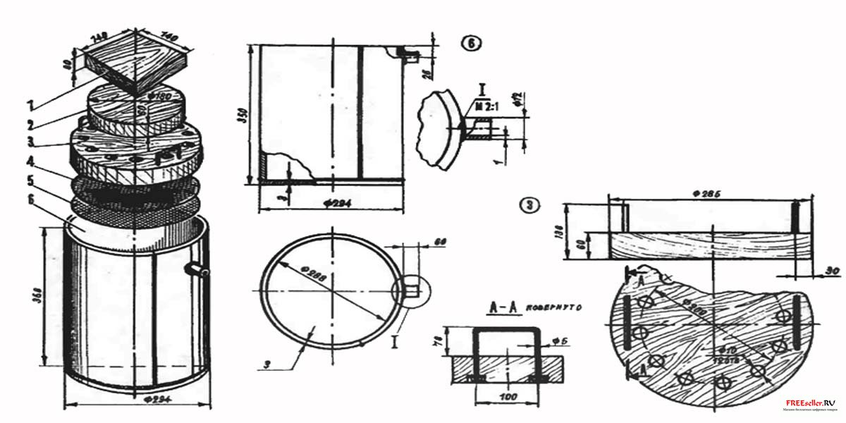
Бочонок для маслопресса.

При работе с прессом используйте защитные средства, такие как перчатки и очки, чтобы избежать возможных травм.

Просто ШОК!!! Что можно сделать из обычной мясорубки.

Подбирайте правильные крепления и фурнитуру для пресса, которая обеспечит его надежность и долговечность.

Пресс для бочек

Пресс для 200 литровых бочек

Не забывайте про периодическую техническую проверку и обслуживание пресса, чтобы сохранить его работоспособность.

Пресс для бочек - Пресс ПГП-18Б

При использовании пресса соблюдайте меры безопасности и не нарушайте инструкцию по его эксплуатации.